





Download Information Sheet | Download Full Groundplan
| Construction |
Wind-tight chalet connection |
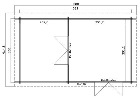
| Wall Thickness | 44 mm |
| Wall Dimensions | 360 x 360 cm |
| Floor Size | 12.33 m2 |
| Terrace Size | 9.792 m2 |
| Ridge Height | 233.7 cm |
| Wall Height | 222.3 cm |
| Front Overhang | 28 cm |
| Roof Area | 28.55 m2 |
| Roof Angle | 1.8° |
| Doors |
2 x 1588 x 1957 mm
|
| Windows |
1 x 560 x 1780 mm |
| Pallets |
630x118x83 cm
1520 kg
|