












This is a spacious garden house with fully glazed double door and single windows that provide plenty of natural light making this garden house great for a home office, summer house or home studio.
Download Information Sheet | Download Full Groundplan
| Construction |
Wind-tight chalet connection |
| Wall Thickness | 44 mm |
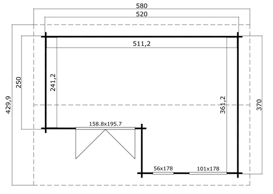
| Wall Dimensions | 370 x 520 cm |
| Floor Size | 15.36 m2 |
| Terrace Size | 3.096 m2 |
| Ridge Height | 250.8 cm |
| Wall Height | 210.9 cm |
| Front Overhang | 30 cm |
| Roof Area | 25.52 m2 |
| Roof Angle | 12.3° |
| Doors |
1 x 1588 x 1957 mm
|
| Windows | 1 x 560 x 1780 mm 1 x 1010 x 1780 mm |
| Pallets |
630x118x66 cm
1500 kg
|