







This modern bright and airy house, with three large openable windows and three quarter glazed door is a perfect space for a studio or a office room.
Download Information Sheet | Download Full Groundplan
Construction |
Wind-tight chalet connection |
Wall Thickness | 44 mm |
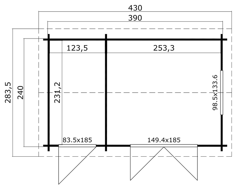
Wall Dimensions | 240 x 390 cm |
Floor Size | 8.81 m2 |
Ridge Height | 251 cm |
Wall Height | 211 cm |
Front Overhang | 20 cm |
Roof Area | 12.384 m2 |
Roof Angle | |
Doors |
1 x 1494 x 1850 mm
1 x 835 x 1850 mm |
Windows |
1 x 985 x 1336 mm |
Pallets |
440x118x76 cm
1010 kg
|