










This cabin, garage and car cover is the perfect solution at the end of a driveway. It boasts a variety of door options and colours.
Download Information Sheet | Download Full Groundplan
| Construction |
Modern corner connection |
| Wall Thickness | 44 mm |
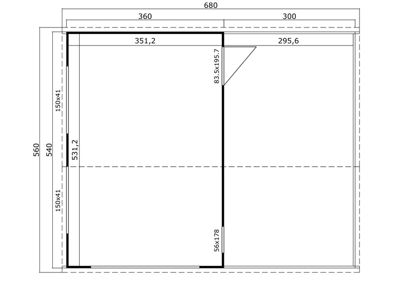
| Wall Dimensions | 600 x 540 cm |
| Floor Size | 34.59 m2 |
| Ridge Height | 250.8 cm |
| Wall Height | 239.4 cm |
| Front Overhang | 10 cm |
| Roof Area | 38.1 m2 |
| Roof Angle | 1.2° |
| Doors |
1 x 835 x 1900 mm |
| Windows |
1 x 560 x 1780 mm 2 x 1500 x 410 mm |
| Pallets |
630x118x79 cm
1530 kg
2530x1170x33 cm |