













Download Information Sheet | Download Full Groundplan
| Construction |
Modern corner connection |
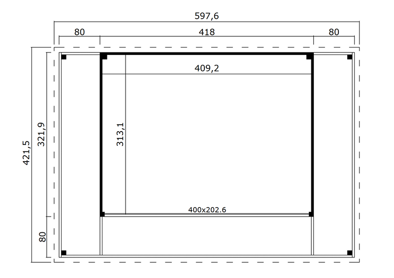
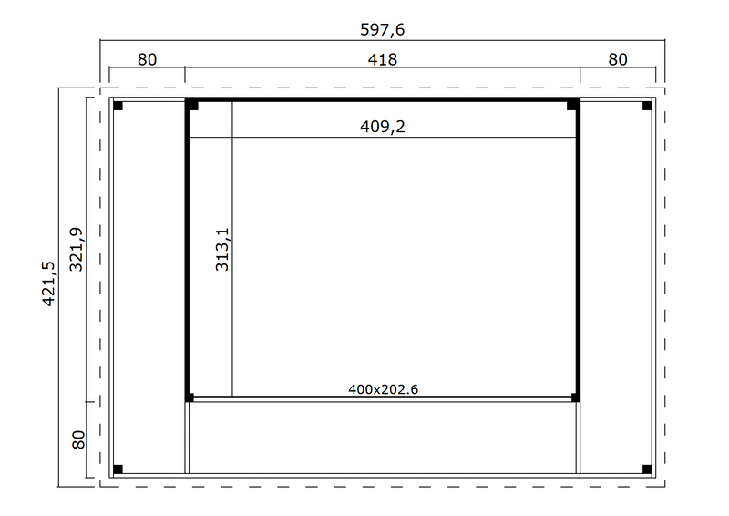
| Wall Thickness | 44 mm |
| Wall Dimensions | 401.9 x 578 cm |
| Floor Size | 22.38 m2 |
| Ridge Height | 239.4 cm |
| Wall Height | 239.4 cm |
| Front Overhang | 10 cm |
| Roof Area | 24.46 m2 |
| Roof Angle | 2.1° |
| Doors |
1 x 4000 x 2026 mm
|
| Pallets |
630x118x78 cm
1200 kg
245x118x41 cm 250 kg
|