







This cabin is available in two sizes and it impresses with its division into two rooms. The main room is equipped with a spacious part glazed double door. The storage room – with a massive solid wood door – is perfect for the storage of your garden tools or other utensils.
Download Information Sheet | Download Full Groundplan
| Construction |
Wind-tight chalet connection |
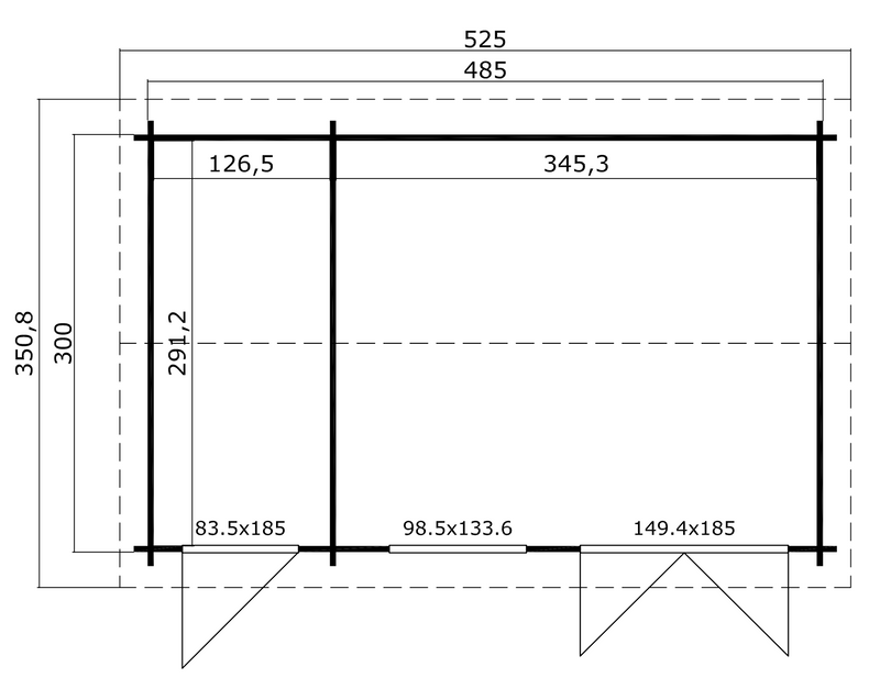
| Wall Thickness | 44 mm |
| Wall Dimensions | 300 x 485 cm |
| Floor Size | 13.87 m2 |
| Ridge Height | 250.8 cm |
| Wall Height | 210.9 cm |
| Front Overhang | 20 cm |
| Roof Area | 18.9 m2 |
| Roof Angle | 13° |
| Doors |
1 x 1494 x 1850 mm
1 x 835 x 1850 mm |
| Windows | 1 x 985 x 1336 mm |
| Pallets |
630x118x71 cm
1334 kg
|